00件
最近見た物件
00件
検討リスト
市原市・千葉市の不動産|株式会社タカショー不動産 > (マンション(売買))地域から探す > 市原市 > ハートポート五井 > 702
・最上階!眺望、陽当り、通風良好です。
・駅徒歩約3分!スーパー、小学校、中学校も近く生活環境良好☆
・鉄筋コンクリート造、平成3年築
空室の為、いつでもご見学可能です。
お気軽にお問い合わせ下さい!
【現地待ち合わせ現地解散可能です!不動産屋さんのお休みが多い水曜日でもご見学可能です】好きなお時間で内覧OK!!現地にて住宅ローンのお話や購入の流れのご説明/お手続きもしっかりサポート致します。
画像をクリックして視点を操作











(※元利均等方式 金利5.00%まで ※返済年数5~50年まで入力できます)
(※ボーナスは年2回で計算しています。1000万円まで入力できます)
(※物件購入時、その他諸費用が発生する場合がございます)
| 所在地 | 千葉県市原市五井中央西1丁目6-9 | ||
|---|---|---|---|
| 交通 | |||
| 間取り/詳細 |
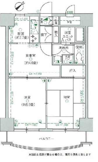
2DK 和室 6.0帖/洋室 5.9帖/DK 7.3帖 |
||
| 専有面積/バルコニー面積 | 42.39㎡/6.58㎡ | ルーフバルコニー面積/テラス面積/専用庭面積 | -/-/- |
| 価格 | 850万円 | ||
| 管理費 | 16,530円 | ||
| 修繕積立金 | 10,080円 | 修繕積立基金 | - |
| 権利金 | - | 駐車場/月額料金 | 無/- |
| 土地の敷金/保証金 | -/- | 借地料/借地期間 | -/- |
| 土地権利 | 所有権 | 国土法届出要否 | 不要 |
| 用途地域 | 商業 | 地勢 | - |
| 種別/構造 | 中古マンション/鉄筋コンクリート | 向き | 南東 |
| 築年月(築年数) | 1991年 7月 (築34年) | ||
| 所在階/階建 | 7階/7階建 | 棟総戸数/販売戸数 | 27戸/- |
| 管理組合有無 | 有 | 管理形態 | 管理会社に全部委託 |
| 管理員の勤務形態 | 日勤 | 管理会社 | 日本ハウズイング |
| 取引態様 | 専任媒介 | 現況 | 空家 |
| 引渡し | 相談 | 建築確認番号 | - |
| 物件番号 | 88881712 | 取引条件の有効期限 | 2025年11月21日 |
| 設備条件 |
|
||
| 備考 | こだわりで選びたい方におすすめ。市原市エリアで住まいをお探しなら「ハートポート五井」。京葉銀行五井支店が歩いて299mのところにあります。家から230mのところに、薬や日用品を買うのに便利な岡本薬局 みなみ店があります。市原市にある内房線五井周辺で不動産をお探しの方は、当社にお任せ下さい。住まい探しで失敗しないよう、当社がしっかりとサポートいたします。 | ||
| 取扱会社 |
|
||
| QRコード |
このQRコードを読み取ることで、スマホでも物件情報を確認できます。 |
||
※地図上に表示される物件の位置は付近住所に所在することを表すものであり、実際の物件所在地とは異なる場合がございます。
ハートポート五井に関するこだわり条件から探す